21 Lochview Road

Stranraer. DG9 8HJ

Offers Over - £80,000

Photograph of 21 Lochview Road, Stranraer

Photograph Gallery

Please click on a thumbnail, below, to view a photograph in more detail.

Photograph of 21 Lochview Road, Stranraer Photograph of Hall Photograph of Hall Photograph of Lounge Photograph of Lounge Photograph of Kitchen Photograph of Kitchen Photograph of Shower Room Photograph of Landing Photograph of Bedroom 1 Photograph of Bedroom 1 Photograph of Bedroom 2 Photograph of Bedroom 3 Photograph of Garden Photograph of Garden Photograph of Garden

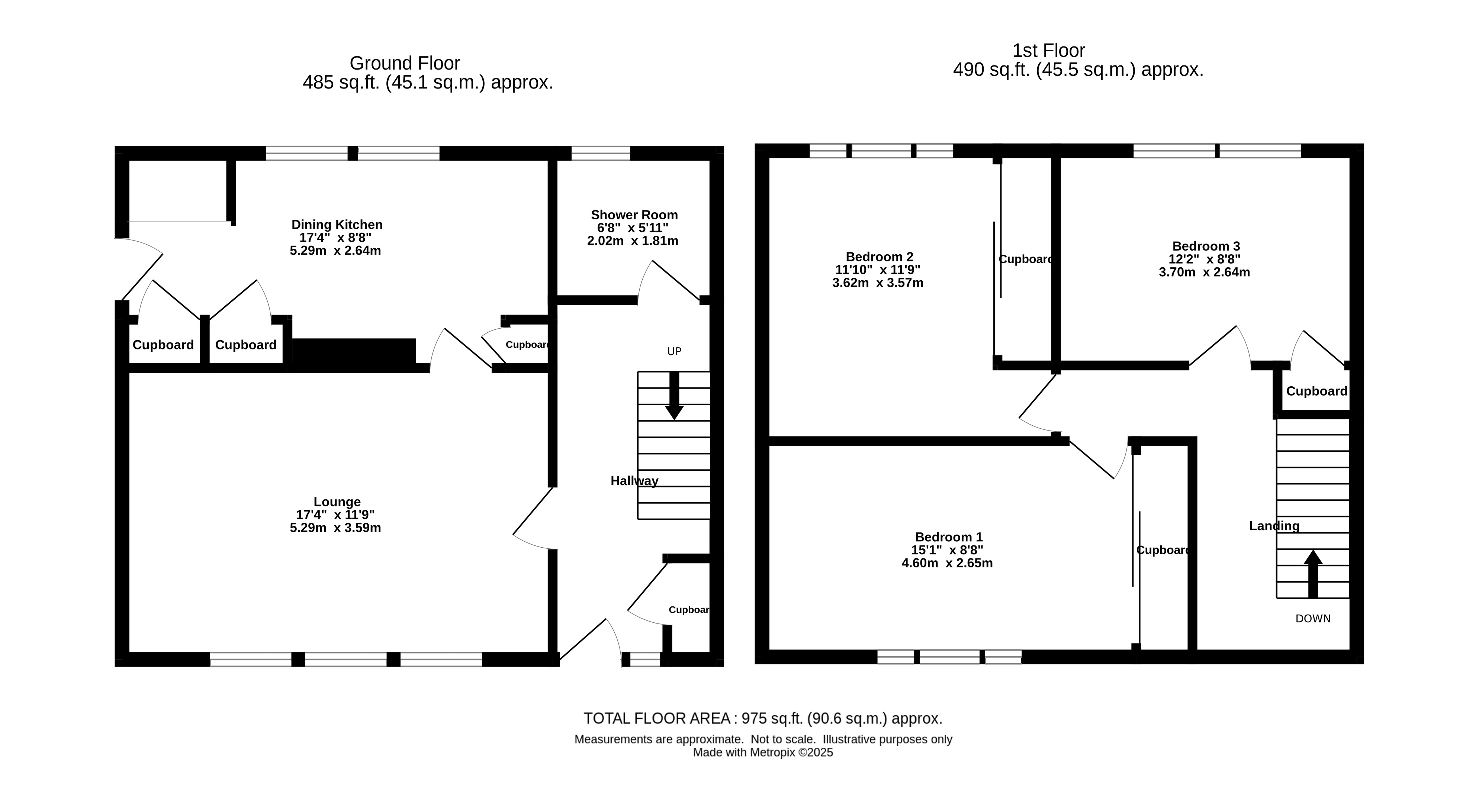
Floor Plan

Please click on the floor plan, below, to enlarge.

Floor Plan for 21 Lochview Road, Stranraer

Property Overview


3
Bedrooms
0
En-suite
1
Public Rooms
1
Bathrooms
Yes
Garden

Located in a popular residential location, this 3-bedroom semi-detached house offers spacious family accommodation over two levels.

Boasting a prime location mere moments away from the shores of Loch Ryan and strategically situated close to both Primary and Secondary schools, it is an ideal residence for families seeking convenience and educational opportunities at their doorstep.

The property is of Non-Standard construction under a re-tiled roof and benefits from a spacious 'dining' kitchen, gas central heating, uPVC double glazing and external insulation.

Perfect for those embarking on their homeownership journey, this property is an ideal first-time purchase with scope for some general modernisation within.

The property is set amidst its own area of easily maintained garden ground with the added benefit of off-road parking.

  • Popular residential location
  • Close to both Primary & Secondary schools
  • Only a short walk from the shores of Loch Ryan
  • Well-proportioned family accommodation
  • Spacious 'dining' kitchen
  • Gas fired central and uPVC double glazing
  • Ideal first-time purchase
  • External insulation
  • Easily maintained garden grounds
  • Off-road parking

Please note that due to this properties construction type, this may not be suitable to some lenders for mortgage purposes. 



Council Tax

A

Energy Rating

EPC = C

Viewing

By appointment with SWPC.

Entry

Negotiable.

More properties in Stranraer (57)


Photograph of 75 Sheuchan Street, Stranraer

75 Sheuchan Street, Stranraer

PLEASE NOTE: A closing date has been set for Monday, 20th of October at 12 Noon. All formal offers should be submitted via a Scottish solicitor to SWPC by the appointed time. Offers Over - £90,000


Photograph of 11c Dunbar Court, Stranraer

11c Dunbar Court, Stranraer

PRICE REDUCTION: Offers Over - £54,995


Photograph of 3 Clenoch Street, Stranraer

3 Clenoch Street, Stranraer

PRICE CHANGE - Offers Over - £66,000


Photograph of 'The Grapes', 4-6 Bridge Street, Stranraer

'The Grapes', 4-6 Bridge Street, Stranraer

PRICE REDUCTION - Offers around - £235,000


Photograph of 'Wellington House', Stranraer

'Wellington House', Stranraer

Price Reduction Offers Over - £219,500


Photograph of 9 Lewis Street, Stranraer

9 Lewis Street, Stranraer

PRICE REDUCTION Offers Over - £129,000

Galloway & Ayrshire Properties

You may also like the following properties from our partners Galloway & Ayrshire Properties.