53 Sun Street

Stranraer. DG9 7JL

To Let: £600

Photograph of 53 Sun Street, Stranraer

Photograph Gallery

Please click on a thumbnail, below, to view a photograph in more detail.

Photograph of 53 Sun Street, Stranraer

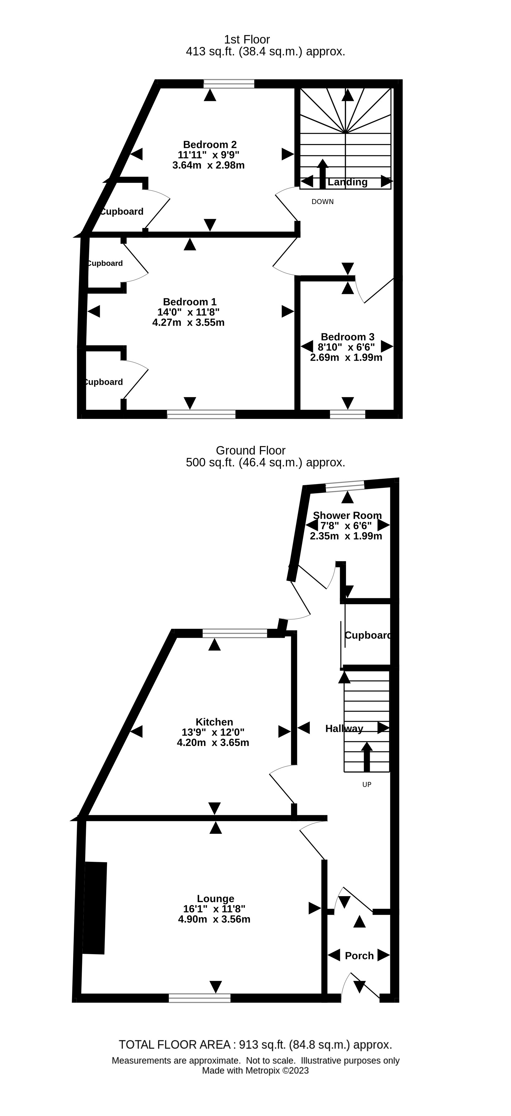
Floor Plan

Please click on the floor plan, below, to enlarge.

Floor Plan for 53 Sun Street, Stranraer

Property Overview


3
Bedrooms
0
En-suite
1
Public Rooms
1
Bathrooms
Yes
Garden

An opportunity to let a terraced property, conveniently located within easy reach of the town centre and all major amenities. The property is in good condition throughout having been recently renovated.

It benefits from a spacious kitchen, ground floor shower room and gas central heating. There is a small, very easily maintained garden to the rear.

 

HALLWAY, LOUNGE, KITCHEN, SHOWER ROOM, 3 BEDROOMS, GARDEN

 

Landlord Registration – 1789349/170/16092

Council Tax Band - B

EPC – E

Available for immediate entry

£600pcm + £600 deposit

 

Please see below for our application form. If you would like to apply, please complete the form, filling in every section, and return it to us at property@swpc.co.uk

All applications should be submitted by 15/11/25.


Schedule

(Rental Application Form_4.pdf)

Schedule Details Prepared:
4th November 2025


Council Tax

B

Energy Rating

EPC = E

Viewing

By appointment with SWPC.

Entry

Negotiable.

More properties in Stranraer (57)


Photograph of Flat 2, 32 George Street, Stranraer

Flat 2, 32 George Street, Stranraer

PLEASE NOTE: A closing date has been set for Friday, the 21st of November 2025, at 12:00 PM. All formal offers must be submitted to SWPC via a Scottish solicitor by the appointed time. Offers Over - £10,000


Photograph of 'The Juniata', 12 Sun Street, Stranraer

'The Juniata', 12 Sun Street, Stranraer

PLEASE NOTE that a closing date for offers has been set for 12noon Wednesday 19th November 2025. All formal offers should be submitted to SWPC by the appointed time. Offers Over - £140,000


Photograph of 11c Dunbar Court, Stranraer

11c Dunbar Court, Stranraer

PRICE REDUCTION: Offers Over - £54,995


Photograph of 3 Clenoch Street, Stranraer

3 Clenoch Street, Stranraer

PRICE CHANGE - Offers Over - £66,000


Photograph of 'The Grapes', 4-6 Bridge Street, Stranraer

'The Grapes', 4-6 Bridge Street, Stranraer

PRICE REDUCTION - Offers around - £235,000


Photograph of 'Wellington House', Stranraer

'Wellington House', Stranraer

Price Reduction Offers Over - £219,500


Photograph of 9 Lewis Street, Stranraer

9 Lewis Street, Stranraer

PRICE REDUCTION Offers Over - £129,000