6 Monument View

Leswalt. DG9 0JJ

Offers Over - £347,500

Photograph of 6 Monument View, Leswalt

Photograph Gallery

Please click on a thumbnail, below, to view a photograph in more detail.

Photograph of 6 Monument View, Leswalt Photograph of Hall Photograph of Lounge Photograph of Lounge Photograph of Kitchen Photograph of Kitchen Photograph of Kitchen Photograph of Utility Room Photograph of Dining Area Photograph of Dining Area Photograph of Dining Area Photograph of Family Room Photograph of Family Room Photograph of Bathroom Photograph of Bathroom Photograph of Bedroom 1 Photograph of Bedroom 2 Photograph of Bedroom 2 Photograph of Landing Photograph of Shower Room Photograph of Shower Room Photograph of Bedroom 3 Photograph of Bedroom 3 Photograph of Bedroom 4 Photograph of Bedroom 5 Photograph of Bedroom 5 Photograph of Garden Photograph of Garden Photograph of Garden Photograph of Garden Photograph of Garden

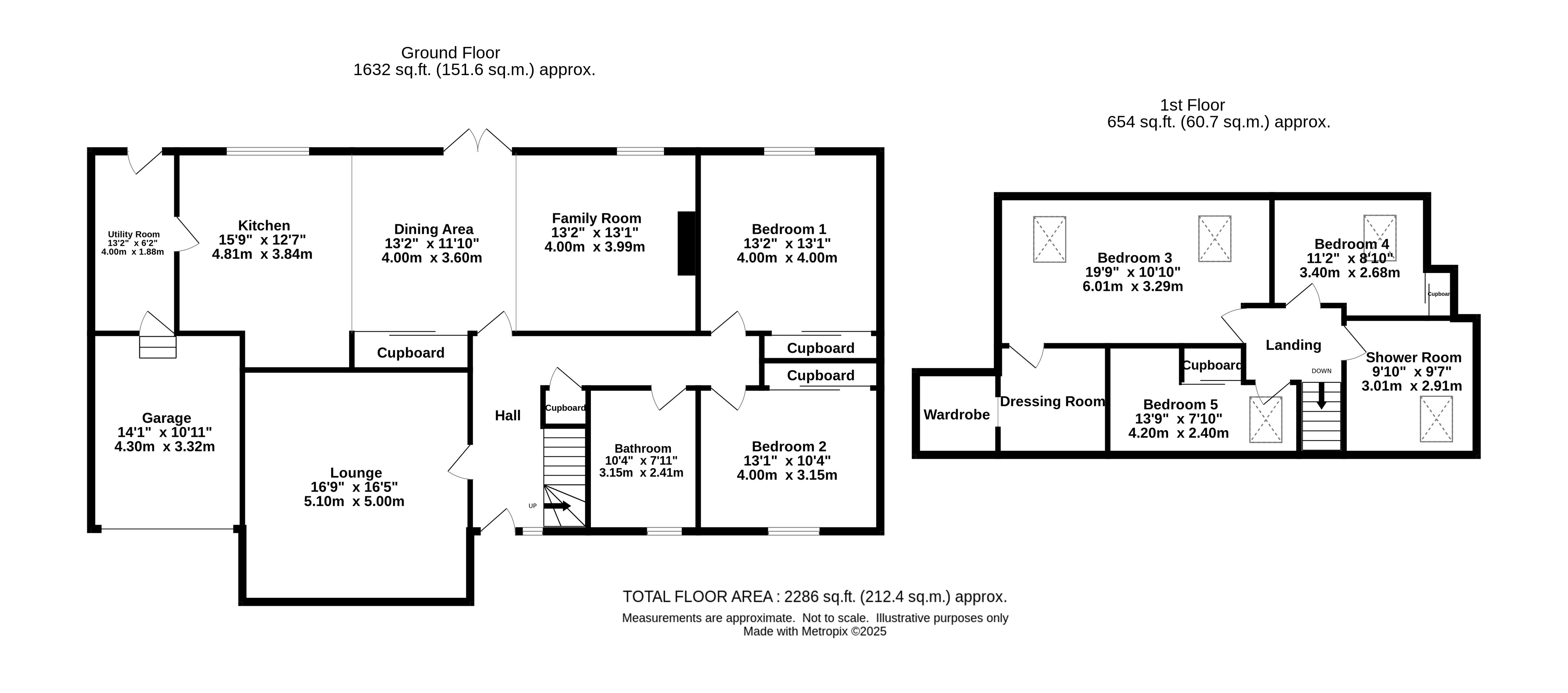
Floor Plan

Please click on the floor plan, below, to enlarge.

Floor Plan for 6 Monument View, Leswalt

Property Overview


5
Bedrooms
0
En-suite
3
Public Rooms
2
Bathrooms
Yes
Garden

Located within the popular village of Leswalt, this modern 5-bedroom house boasts spacious family accommodation spread over two levels. Impeccably maintained, this residence presents itself in excellent condition throughout.

Of timber frame construction under a slate roof, the property benefits from a splendid 'dining' kitchen/family room, delightful bathroom, delightful shower room, wood-burning stove, oil-fired central heating and uPVC double glazing.

Stepping outside, residents are greeted by well-maintained garden grounds, offering an ideal space for outdoor entertainment. The property also provides ample off-road parking for a number of vehicles.

Seldom does the opportunity arise to acquire a prestigious property such as this and in such and viewing is to be thoroughly recommended.

  • Popular village location
  • Generous family accommodation over two levels
  • Excellent condition throughout
  • Splendid 'dining' kitchen / family room
  • Delightful bathroom & delightful shower room
  • Wood-burning stove
  • Oil central heating & uPVC double glazing
  • Well-maintained garden grounds
  • Ample off-road parking


Council Tax

F

Energy Rating

EPC = C

Viewing

By appointment with SWPC.

Entry

Negotiable.

More properties in Leswalt (6)