17 Church Road

Kirkcolm. DG9 0NW

UNDER OFFER - £80,000

Photograph of 17 Church Road, Kirkcolm

Photograph Gallery

Please click on a thumbnail, below, to view a photograph in more detail.

Photograph of 17 Church Road, Kirkcolm Photograph of View Photograph of Lounge Photograph of Lounge Photograph of Kitchen Photograph of Shower Room Photograph of Bedroom 1 Photograph of Bedroom 2 Photograph of Garden Photograph of Garden

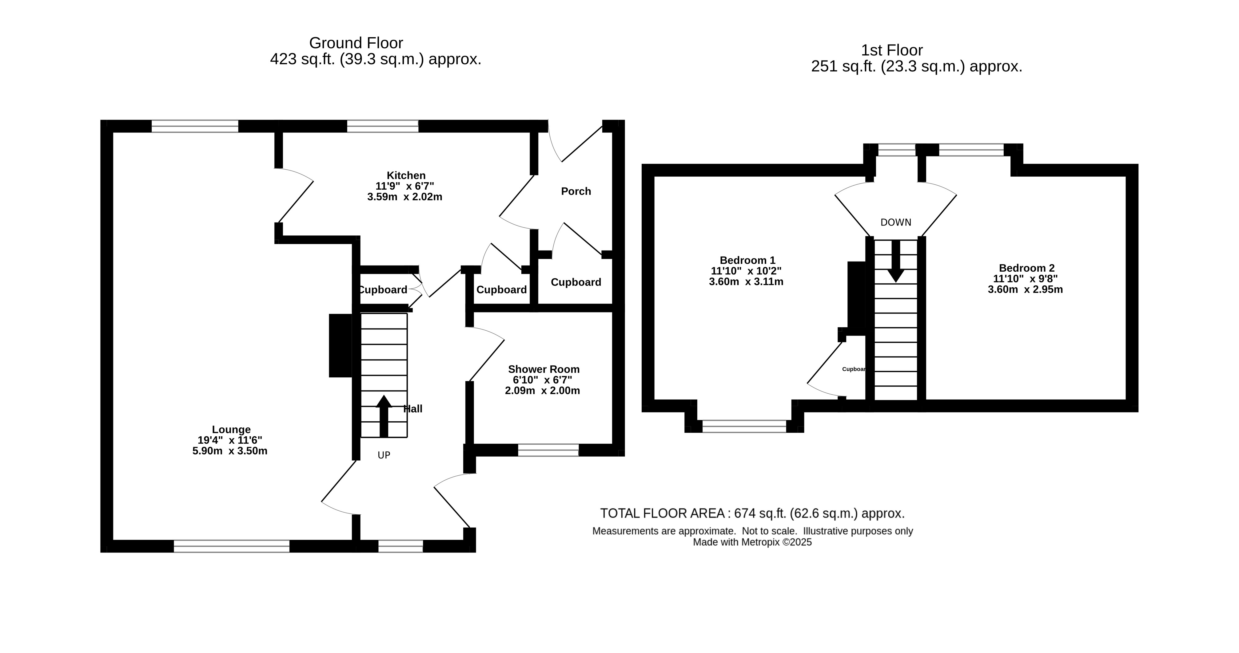
Floor Plan

Please click on the floor plan, below, to enlarge.

Floor Plan for 17 Church Road, Kirkcolm

Property Overview


2
Bedrooms
0
En-suite
1
Public Rooms
1
Bathrooms
Yes
Garden

Situated within the popular village of Kirkcolm, this is a 2-bedroom semi-detached house providing comfortable family accommodation. The rear of the property provides a picturesque backdrop with views over farmland to Loch Ryan and beyond. Spread over two levels, this residence features a practical layout perfect for every-day living. The property benefits from a maple design kitchen, oil-fired central heating and uPVC double glazing. In fair condition, this property also offers great potential for those looking to add their personal touch. With scope for general modernisation, you can make this house your own. The property is set amidst its own area of easily maintained garden grounds with the added benefit of off-road parking.

 

  • Situated within the popular village of Kirkcolm
  • Wonderful views over Loch Ryan, to the rear
  • Oil central heating
  • Double glazing
  • Fair condition with scope for general modernisation within
  • Easily maintained garden grounds
  • Off-road parking


Council Tax

B

Energy Rating

EPC = E

Viewing

By appointment with SWPC.

Entry

Negotiable.