37 Agnew Crescent

Stranraer. DG9 7JZ

Offers Over - £160,000

Photograph of 37 Agnew Crescent, Stranraer

Photograph Gallery

Please click on a thumbnail, below, to view a photograph in more detail.

Photograph of 37 Agnew Crescent, Stranraer Photograph of View Photograph of Kitchen Photograph of Kitchen Photograph of Dining area Photograph of Bedroom 1 Photograph of Bathroom Photograph of Landing Photograph of Lounge Photograph of Bedroom 2 Photograph of Bedroom 3 Photograph of Bedroom 4 Photograph of Decking

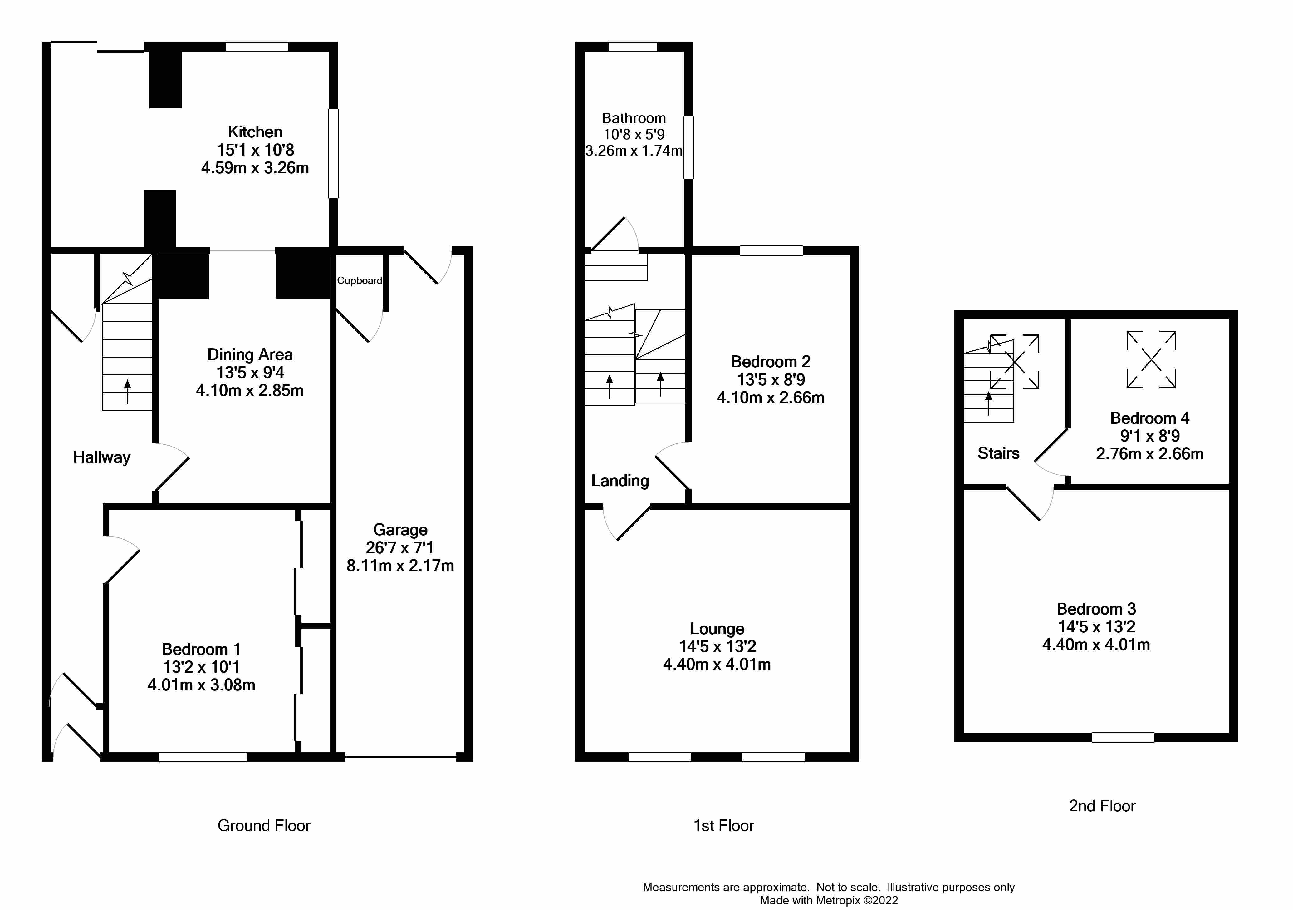
Floor Plan

Please click on the floor plan, below, to enlarge.

Floor Plan for 37 Agnew Crescent, Stranraer

Property Overview


4
Bedrooms
0
En-suite
1
Public Rooms
1
Bathrooms
Yes
Garden

Occupying a seafront location and with spectacular views over Agnew park to the waters of Loch Ryan, Cairnryan hills and Ailsa Craig, this is a mid-terraced townhouse which provides very well proportioned family accommodation over three floors.

 

Of traditional construction under a slated roof, the property is in excellent condition throughout having been modernised in the past. It benefits from from a shaker design kitchen, delightful bathroom, oak internal finishings, the use of oak flooring, uPVC double glazing and gas fired central heating.  

 

To the rear there is an area of terraced garden ground with further potential for development. It is situated adjacent to a range of terraced properties of varying style and is located within easy reach of the town centre and all major amenities including supermarkets, healthcare, indoor leisure pool complex  and secondary school.

 

  • Seafront location
  • Delightful views over parkland to Loch Ryan beyond
  • Only a short walk from the town centre
  • Sheuchan Primary school is located close by
  • Excellent condition throughout
  • Splendid 'dining' kitchen
  • Delightful bathroom
  • The use of oak internal finishings
  • Gas central heating
  • Modern double glazing


Council Tax

D

Energy Rating

EPC = D

Viewing

By appointment with SWPC.

Entry

Negotiable.

More properties in Stranraer (57)


Photograph of Flat 2, 32 George Street, Stranraer

Flat 2, 32 George Street, Stranraer

PLEASE NOTE: A closing date has been set for Friday, the 21st of November 2025, at 12:00 PM. All formal offers must be submitted to SWPC via a Scottish solicitor by the appointed time. Offers Over - £10,000


Photograph of 'The Juniata', 12 Sun Street, Stranraer

'The Juniata', 12 Sun Street, Stranraer

PLEASE NOTE that a closing date for offers has been set for 12noon Wednesday 19th November 2025. All formal offers should be submitted to SWPC by the appointed time. Offers Over - £140,000


Photograph of 11c Dunbar Court, Stranraer

11c Dunbar Court, Stranraer

PRICE REDUCTION: Offers Over - £54,995


Photograph of 3 Clenoch Street, Stranraer

3 Clenoch Street, Stranraer

PRICE CHANGE - Offers Over - £66,000


Photograph of 'The Grapes', 4-6 Bridge Street, Stranraer

'The Grapes', 4-6 Bridge Street, Stranraer

PRICE REDUCTION - Offers around - £235,000


Photograph of 'Wellington House', Stranraer

'Wellington House', Stranraer

Price Reduction Offers Over - £219,500


Photograph of 9 Lewis Street, Stranraer

9 Lewis Street, Stranraer

PRICE REDUCTION Offers Over - £129,000