Plot 2, Kirkmaiden

Drummore. DG9 9QP

PRICE REDUCTION Offers Over - £50,000

Photograph of Plot 2, Kirkmaiden, Drummore

Photograph Gallery

Please click on a thumbnail, below, to view a photograph in more detail.

Photograph of Plot 2, Kirkmaiden, Drummore Photograph of Plot view Photograph of Plot view Photograph of House plan Photograph of House plan Photograph of House plan Photograph of House plan Photograph of Plot plan

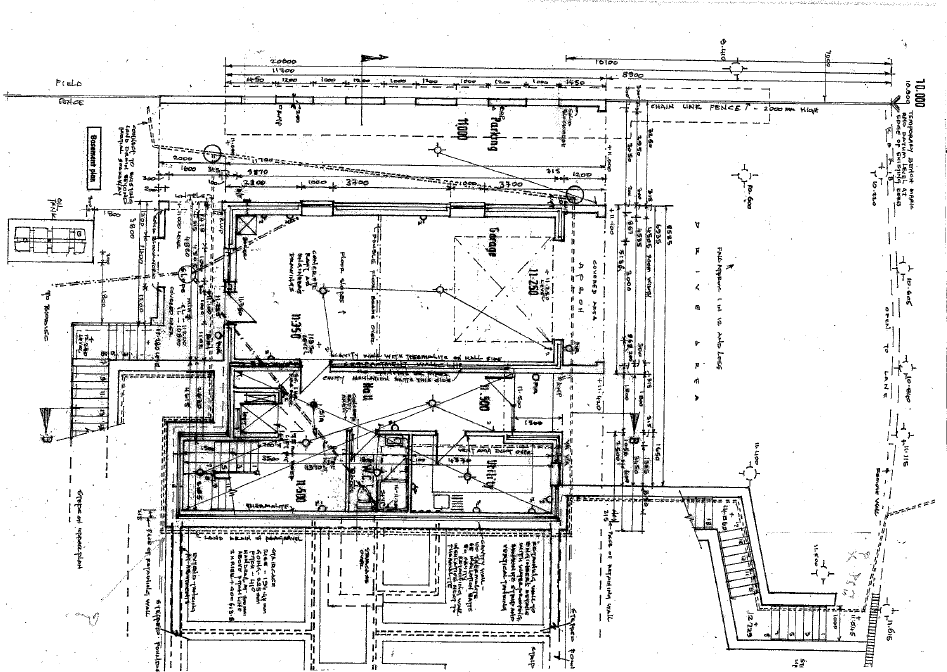
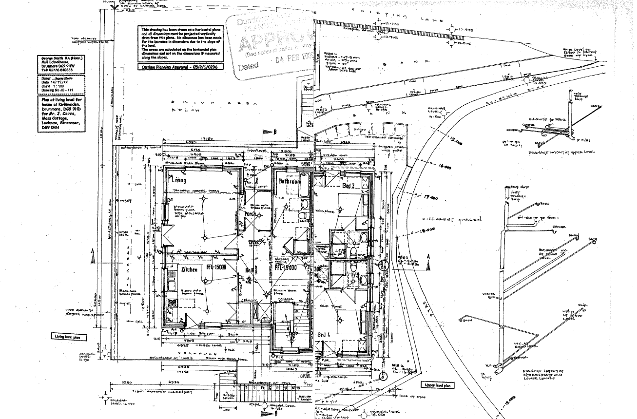
Floor Plan

Please click on the floor plan, below, to enlarge.

Floor Plan for Plot 2, Kirkmaiden, Drummore

Property Overview


0
Bedrooms
0
En-suite
0
Public Rooms
0
Bathrooms
Yes
Garden

An opportunity has arisen to acquire a development site located in the charming hamlet of Kirkmaiden, only a couple of miles from Scotland's most southerly village of Drummore. From the site there are views over picturesque farmland to the waters of Luce Bay.

This unique parcel of land, with previous planning permission for the construction of a residential dwelling, presents a chance for those with a vision to create a home in this setting. The site would also lend itself to amenity land, ideal for storage or the construction of a commercial building, subject to local authority approval. Previous planning reference 05/P/1/0296, granted in 2005.

  • A development opportunity located in the popular hamlet of Kirkmaiden
  • From the site there are views over farmland to Luce Bay
  • Previous planning permission for the construction of a residential dwelling
  • Could be used as amenity land

Schedule

(Brochure - Plot 2, Kirkmaiden, Drummore_1.pdf)

Schedule Details Prepared:
9th October 2025


Council Tax

TBC

Energy Rating

TBC

Viewing

By appointment with SWPC.

Entry

Negotiable.