33 Main Street

Kirkcolm. DG9 0NL

Offers Over - £115,000

Photograph of 33 Main Street, Kirkcolm

Photograph Gallery

Please click on a thumbnail, below, to view a photograph in more detail.

Photograph of 33 Main Street, Kirkcolm Photograph of Outside Photograph of Utility Room Photograph of Utility Room Photograph of Shower room Photograph of Kitchen Photograph of Kitchen Photograph of Kitchen Photograph of Kitchen Photograph of Sitting Room Photograph of Sitting Room Photograph of Bedroom 3 Photograph of Bedroom 3 Photograph of Bedroom 3 Photograph of Bedroom 2 Photograph of Bedroom 2 Photograph of Bedroom 1 Photograph of Bedroom 1 Photograph of Box Room Photograph of Bathroom Photograph of Garden Photograph of Garden Photograph of Garden Photograph of Garden Photograph of Garden Photograph of Garden

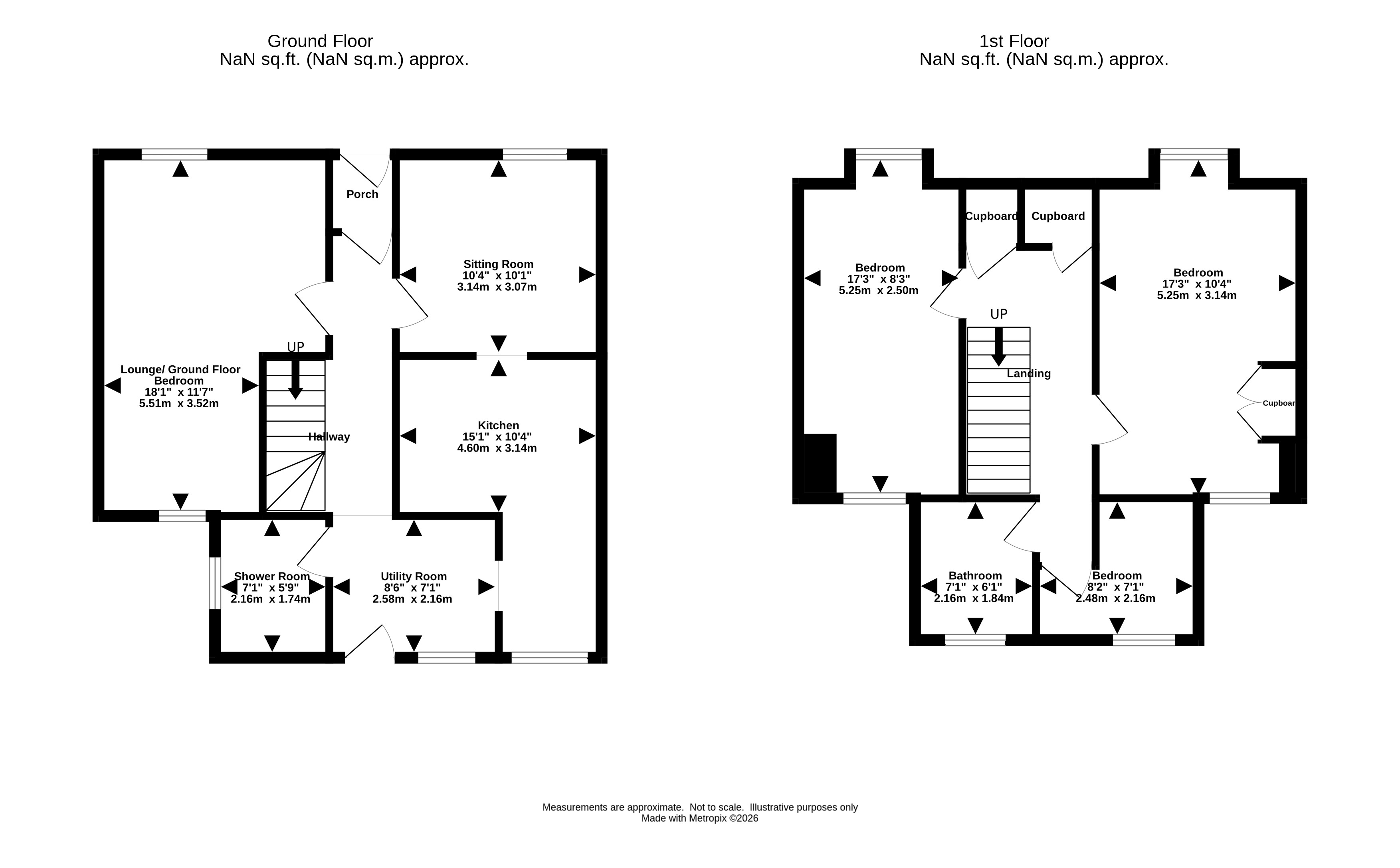
Floor Plan

Please click on the floor plan, below, to enlarge.

Floor Plan for 33 Main Street, Kirkcolm

Property Overview


3
Bedrooms
0
En-suite
1
Public Rooms
2
Bathrooms
Yes
Garden

This charming three bedroom end of terrace house offers an excellent opportunity to acquire a traditional cottage style property with an attractive dormer frontage. Situated in the sought after coastal village of Kirkcolm, the home provides flexible accommodation arranged over two levels, with scope for modernisation to suit individual tastes. The property features LPG gas central heating and is ideally positioned within close proximity to both the scenic coastline and countryside walks. Whether you are seeking a main residence, a holiday retreat or an investment property, this home offers versatility and convenience, with easy access to the wider amenities of Stranraer just a short drive away.

Externally, the property benefits from a range of private outdoor spaces, including an enclosed courtyard area and additional garden ground set over varying levels. The gardens offer excellent potential for landscaping and personalisation, with established shrubs and planting areas providing the opportunity to create a tranquil retreat. A detached timber shed offers useful storage for garden equipment or outdoor pursuits. The secure and enclosed nature of the outside space makes it ideal for families, pets or those looking to enjoy outdoor living in a peaceful village setting.

 

  • Traditional cottage style property with attractive dormer frontage
  • Located within the popular coastal village of Kirkcolm
  • LPG gas central heating
  • Flexible accommodation over two levels
  • Opportunity for modernisation
  • Enclosed garden areas
  • Close proximity to coastline and countryside walks
  • Ideal as main residence, holiday home or investment property
  • Convenient access to Stranraer for wider amenities


Council Tax

B

Energy Rating

EPC = F

Viewing

By appointment with SWPC.

Entry

Negotiable.