81 Fairhurst Road

Stranraer. DG9 7QA

Offers Over - £115,000

Photograph of 81 Fairhurst Road, Stranraer

Photograph Gallery

Please click on a thumbnail, below, to view a photograph in more detail.

Photograph of 81 Fairhurst Road, Stranraer Photograph of Hall Photograph of Lounge Photograph of Lounge Photograph of Kitchen Photograph of Kitchen Photograph of Kitchen Photograph of WC Photograph of Landing Photograph of Shower Room Photograph of Bedroom 1 Photograph of Bedroom 3 Photograph of Bedroom 2 Photograph of Garden Photograph of Garden

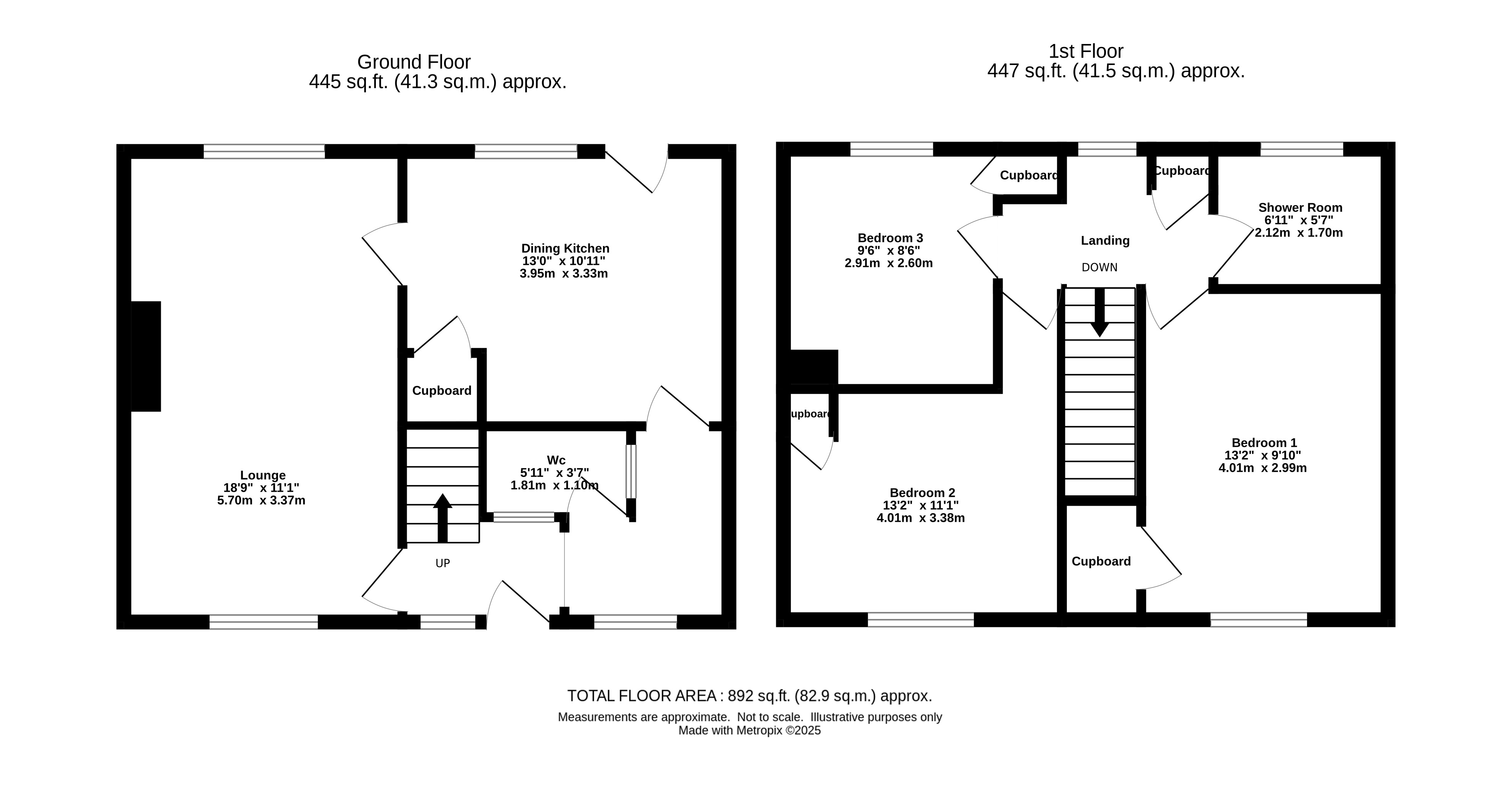
Floor Plan

Please click on the floor plan, below, to enlarge.

Floor Plan for 81 Fairhurst Road, Stranraer

Property Overview


3
Bedrooms
0
En-suite
1
Public Rooms
2
Bathrooms
Yes
Garden

Situated within a sought-after locale, this immaculately presented 3-bedroom terraced house offers well-proportioned family accommodation over two levels.

In excellent condition throughout this villa boasts a splendid 'dining' kitchen, delightful shower room, a ground floor WC, new decor & flooring throughout, some new internal doors and some new internal plaster work.

The property features gas central heating with a new boiler, as well as uPVC double glazing for added comfort.

Ideally positioned within proximity to two primary schools, this residence promises a lifestyle of ease and comfort for discerning buyers.

The property is set within its own area of low-maintenance garden ground with added benefit of off-road parking.

Kitchen white goods and other furnishings are available by separate negotiation.

  • Immaculately presented 3 bedroom villa
  • Well-proportioned family accommodation over two levels
  • Situated within easy reach of 2 primary schools
  • Splendid 'dining' kitchen
  • Delightful shower room
  • New decor and flooring throughout
  • Some new internal doors & some new internal plaster work
  • Ground floor WC
  • Gas central heating (new boiler installed) & uPVC double glazing
  • Easily maintained garden ground & off-road parking


Council Tax

B

Energy Rating

EPC = D

Viewing

By appointment with SWPC.

Entry

Negotiable.

More properties in Stranraer (56)


Photograph of 75 Sheuchan Street, Stranraer

75 Sheuchan Street, Stranraer

PLEASE NOTE: A closing date has been set for Monday, 20th of October at 12 Noon. All formal offers should be submitted via a Scottish solicitor to SWPC by the appointed time. Offers Over - £90,000


Photograph of 11c Dunbar Court, Stranraer

11c Dunbar Court, Stranraer

PRICE REDUCTION: Offers Over - £54,995


Photograph of 3 Clenoch Street, Stranraer

3 Clenoch Street, Stranraer

PRICE CHANGE - Offers Over - £66,000


Photograph of 'The Grapes', 4-6 Bridge Street, Stranraer

'The Grapes', 4-6 Bridge Street, Stranraer

PRICE REDUCTION - Offers around - £235,000


Photograph of 'Wellington House', Stranraer

'Wellington House', Stranraer

Price Reduction Offers Over - £219,500


Photograph of 9 Lewis Street, Stranraer

9 Lewis Street, Stranraer

PRICE REDUCTION Offers Over - £129,000

Galloway & Ayrshire Properties

You may also like the following properties from our partners Galloway & Ayrshire Properties.