23 Garrick Drive

Stranraer. DG9 7FH

Offers Over - £125,000

Photograph of 23 Garrick Drive, Stranraer

Photograph Gallery

Please click on a thumbnail, below, to view a photograph in more detail.

Photograph of 23 Garrick Drive, Stranraer Photograph of Hallway Photograph of WC Photograph of Lounge Photograph of Kitchen 1 Photograph of Kitchen 3 Photograph of Kitchen 2 Photograph of Dining Room Photograph of Landing Photograph of Bedroom 1 Photograph of Bedroom 1 Photograph of Bedroom 2 Photograph of Bedroom 3 Photograph of Bathroom Photograph of Garden Photograph of Garden

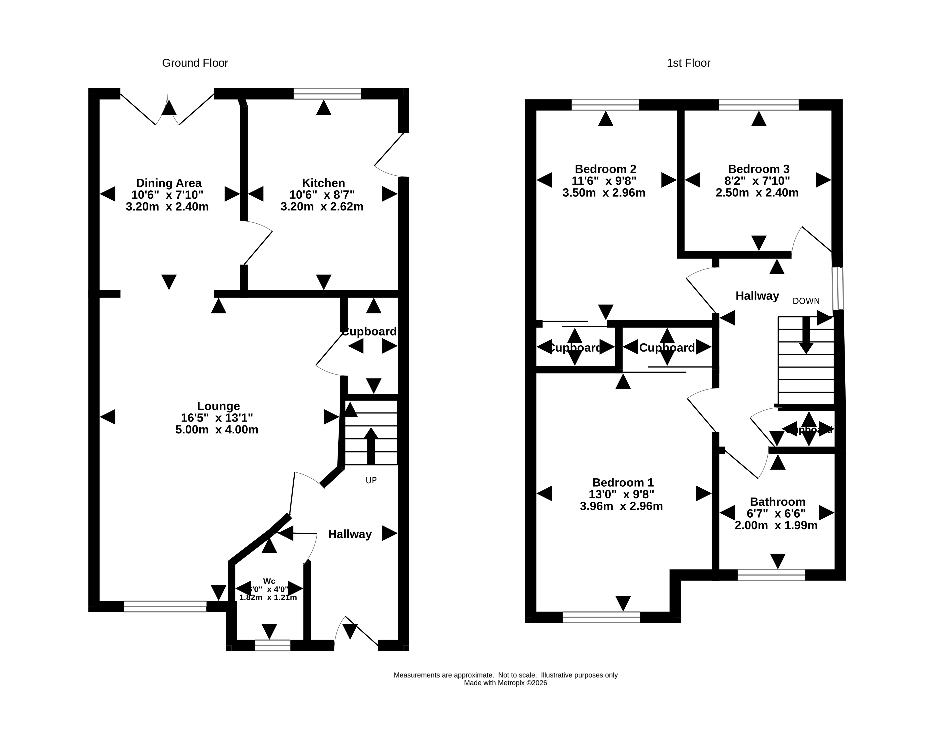
Floor Plan

Please click on the floor plan, below, to enlarge.

Floor Plan for 23 Garrick Drive, Stranraer

Property Overview


3
Bedrooms
0
En-suite
0
Public Rooms
2
Bathrooms
Yes
Garden

Located in a sought-after residential area, this modern three-bedroom, semi-detached villa offers a blend of style, comfort, and practicality. The home welcomes you with a bright and inviting entrance hall, leading to a spacious lounge/dining room that is perfect for both relaxing and entertaining. The maple design kitchen is well-appointed with contemporary cabinetry and ample workspace. A convenient ground-floor WC adds to the functionality of the living space. Upstairs, you will find three bedrooms and a family bathroom. The property further benefits from gas central heating and uPVC double glazing throughout, ensuring warmth and energy efficiency all year round.

The outdoor space is designed for ease of maintenance with the added benefit of off-road parking.

This delightful home is perfectly positioned to enjoy all the benefits of a popular residential location, with local amenities, schools, and transport links just a short distance away. Whether you are a first-time buyer or seeking a refined family home, this property is sure to impress with its blend of modern features and practical outdoor space.

 

  • A modern semi-detached villa
  • Popular residential location
  • Maple design kitchen
  • Ground floor WC
  • Delightful bathroom
  • Gas central heating and uPVC double glazing
  • Easily maintained garden ground
  • Off-road parking


Council Tax

D

Energy Rating

EPC = C

Viewing

By appointment with SWPC.

Entry

Negotiable.

More properties in Stranraer (48)


Photograph of 21 St Johns Street, Stranraer

21 St Johns Street, Stranraer

PRICE CHANGE - Offers Over - £90,000


Photograph of 'The Grapes', 4-6 Bridge Street, Stranraer

'The Grapes', 4-6 Bridge Street, Stranraer

PRICE REDUCTION from £235,000 - Offers around - £220,000


Photograph of 9 Lewis Street, Stranraer

9 Lewis Street, Stranraer

PRICE REDUCTION Offers Over - £129,000