'Blair Lomond', Stoneykirk Road

Stranraer. DG9 7BU

UNDER OFFER - £200,000

Photograph of 'Blair Lomond', Stoneykirk Road, Stranraer

Photograph Gallery

Please click on a thumbnail, below, to view a photograph in more detail.

Photograph of 'Blair Lomond', Stoneykirk Road, Stranraer Photograph of Lounge Photograph of Lounge Photograph of Lounge Photograph of Kitchen Photograph of Kitchen Photograph of Kitchen Photograph of Dining Room Photograph of Shower Room Photograph of Bedroom 3/Sitting Room Photograph of Landing Photograph of Bathroom Photograph of Bathroom Photograph of Bedroom 1 Photograph of Bedroom 2 Photograph of Garden Photograph of Garage

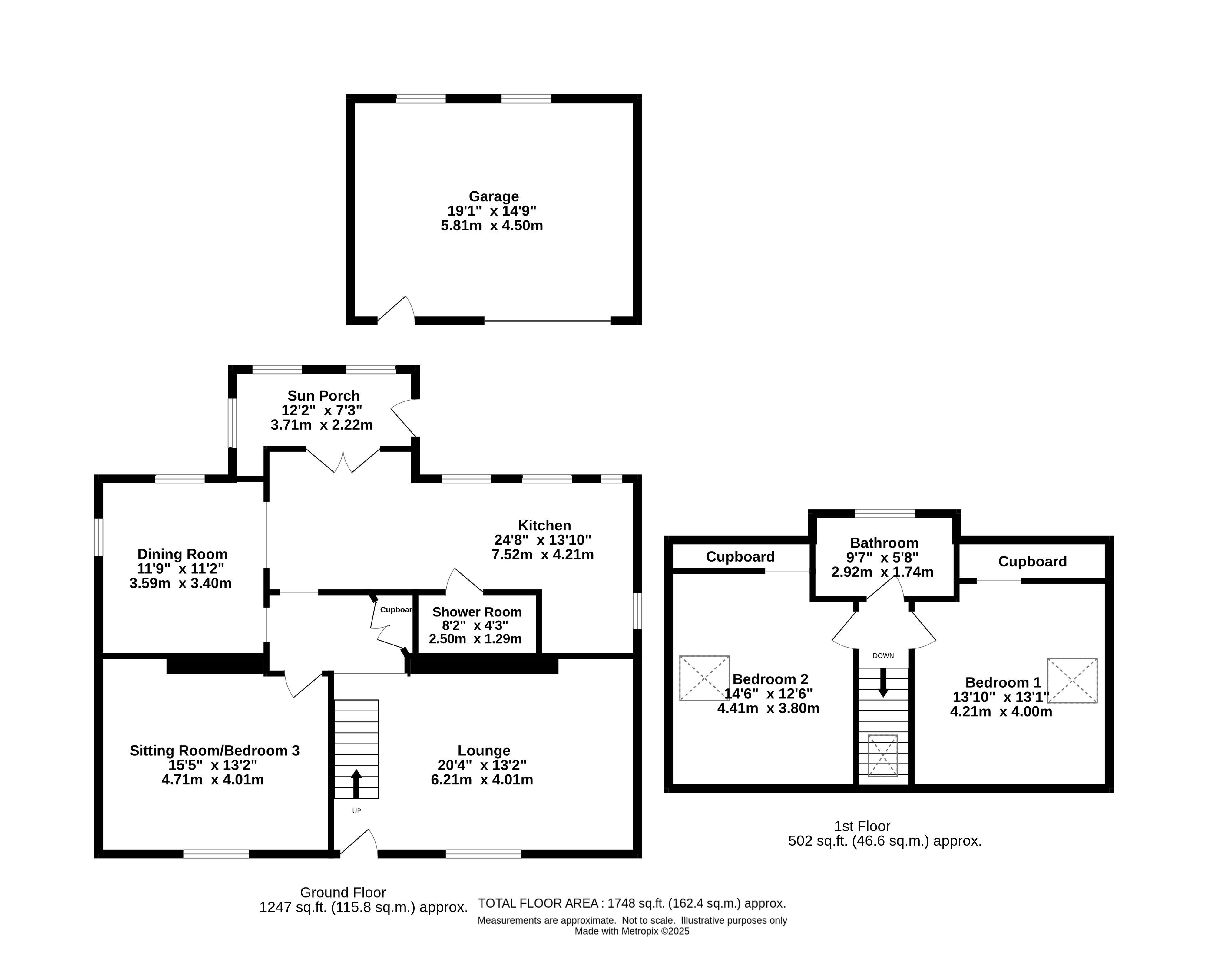
Floor Plan

Please click on the floor plan, below, to enlarge.

Floor Plan for 'Blair Lomond', Stoneykirk Road, Stranraer

Property Overview


3
Bedrooms
0
En-suite
2
Public Rooms
2
Bathrooms
Yes
Garden

Located within a conveniently positioned locale, only a short distance from a variety of essential amenities, this is a 3-bedroom detached bungalow that has undergone a recent modernisation programme.

Upon entry, one is welcomed by a flexible floor plan laid out over two levels, offering adaptability to suit various lifestyle preferences.

Of traditional construction under a slate & felt roof, the property benefits from a spacious 'dining' kitchen, sun porch to the rear, delightful bathroom, a wood-burning stove, electric heating and uPVC double glazing.

Externally, the property boasts easily maintained garden ground with the added benefit of off-road parking for a number of vehicles. A detached garage/workshop caters to storage needs and hobby pursuits.

  • Convenient location, only a short distance from most major amenities
  • Has recently undergone a programme of modernisation
  • Flexible accommodation, laid out over 2 levels
  • Spacious 'dining' kitchen
  • Delightful bathroom
  • Sun porch to the rear
  • Wood-burning stove, electric heating and uPVC double glazing
  • Easily maintained garden ground
  • Detached garage / workshop
  • Generous off-road parking


Council Tax

D

Energy Rating

EPC = F

Viewing

By appointment with SWPC.

Entry

Negotiable.

More properties in Stranraer (55)


Photograph of 75 Sheuchan Street, Stranraer

75 Sheuchan Street, Stranraer

PLEASE NOTE: A closing date has been set for Monday, 20th of October at 12 Noon. All formal offers should be submitted via a Scottish solicitor to SWPC by the appointed time. Offers Over - £90,000


Photograph of 11c Dunbar Court, Stranraer

11c Dunbar Court, Stranraer

PRICE REDUCTION: Offers Over - £54,995


Photograph of 3 Clenoch Street, Stranraer

3 Clenoch Street, Stranraer

PRICE CHANGE - Offers Over - £66,000


Photograph of 'The Grapes', 4-6 Bridge Street, Stranraer

'The Grapes', 4-6 Bridge Street, Stranraer

PRICE REDUCTION - Offers around - £235,000


Photograph of 'Wellington House', Stranraer

'Wellington House', Stranraer

Price Reduction Offers Over - £219,500


Photograph of 9 Lewis Street, Stranraer

9 Lewis Street, Stranraer

PRICE REDUCTION Offers Over - £129,000

Galloway & Ayrshire Properties

You may also like the following properties from our partners Galloway & Ayrshire Properties.