6 Leafield

Stranraer. DG9 0BG

UNDER OFFER - £130,000

Photograph of 6 Leafield, Stranraer

Photograph Gallery

Please click on a thumbnail, below, to view a photograph in more detail.

Photograph of 6 Leafield, Stranraer Photograph of Garden Photograph of Hall Photograph of Lounge Photograph of Lounge Photograph of Kitchen Photograph of Kitchen Photograph of Shower Room Photograph of Bedroom 1 Photograph of Bedroom 2 Photograph of Bedroom 1 Photograph of Garden

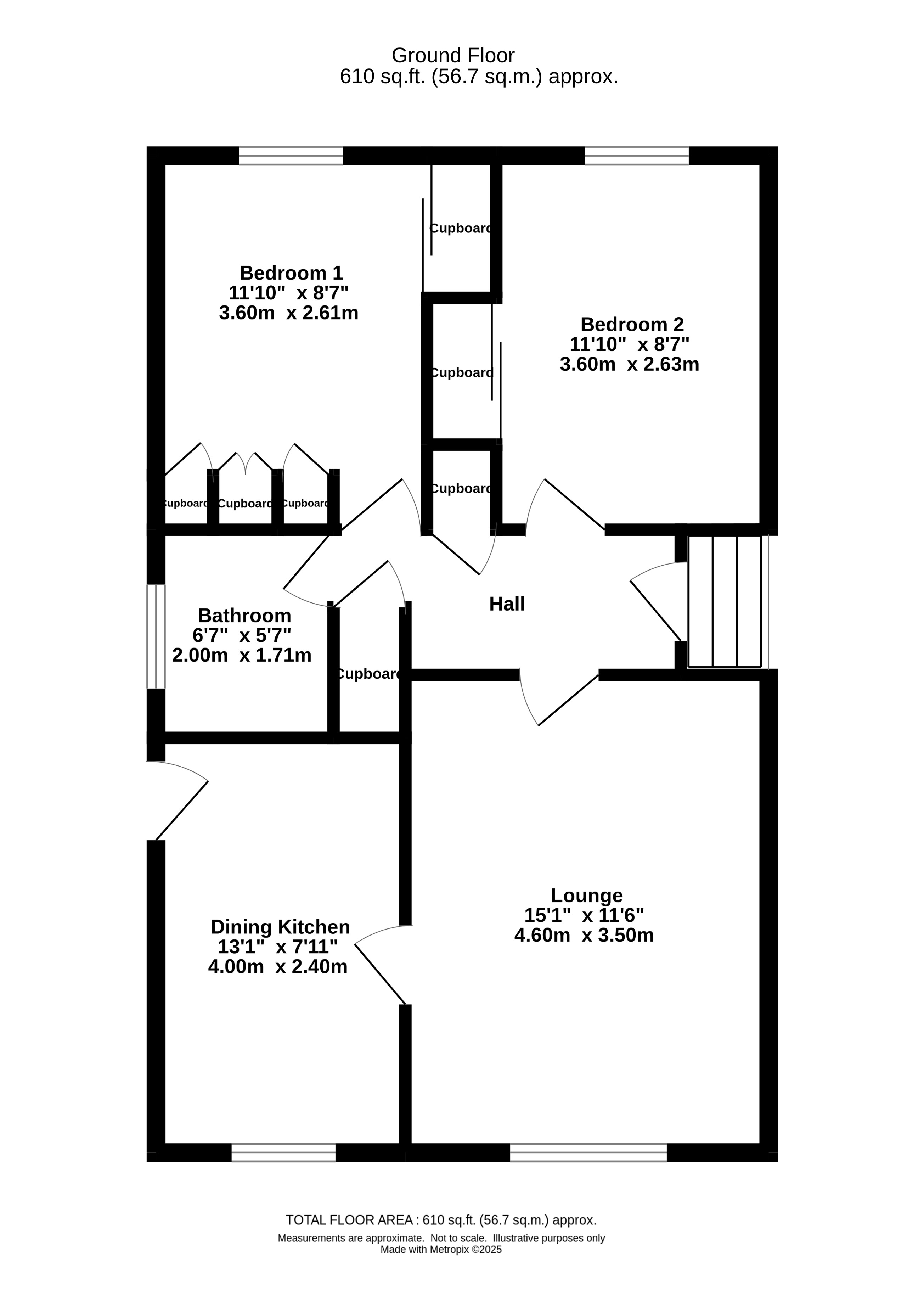
Floor Plan

Please click on the floor plan, below, to enlarge.

Floor Plan for 6 Leafield, Stranraer

Property Overview


2
Bedrooms
0
En-suite
1
Public Rooms
1
Bathrooms
Yes
Garden

Situated within the heart of a sought-after residential area, we are pleased to present to the market a 2-bedroom detached bungalow providing comfortable accommodation over one level.

To the rear of the property there are views over garden ground to farmland beyond.

Of timber frame construction under a tile roof this well-maintained property benefits from a 'dining' kitchen, attractive internal woodwork, electric heating and uPVC double glazing.

The property is set within its own area of easily maintained garden ground with the added benefits of off-road parking and a detached timber garage.

  • Located within a most popular residential area
  • Detached 2-bedroom bungalow
  • Comfortable accommodation over one level
  • Pleasant views to the rear over farmland
  • 'Dining' kitchen
  • Electric heating
  • Double glazing
  • Easily maintained garden ground
  • Detached wooden garage
  • Off-road parking


Council Tax

C

Energy Rating

EPC = F

Viewing

By appointment with SWPC.

Entry

Negotiable.

More properties in Stranraer (55)


Photograph of 75 Sheuchan Street, Stranraer

75 Sheuchan Street, Stranraer

PLEASE NOTE: A closing date has been set for Monday, 20th of October at 12 Noon. All formal offers should be submitted via a Scottish solicitor to SWPC by the appointed time. Offers Over - £90,000


Photograph of 11c Dunbar Court, Stranraer

11c Dunbar Court, Stranraer

PRICE REDUCTION: Offers Over - £54,995


Photograph of 3 Clenoch Street, Stranraer

3 Clenoch Street, Stranraer

PRICE CHANGE - Offers Over - £66,000


Photograph of 'The Grapes', 4-6 Bridge Street, Stranraer

'The Grapes', 4-6 Bridge Street, Stranraer

PRICE REDUCTION - Offers around - £235,000


Photograph of 'Wellington House', Stranraer

'Wellington House', Stranraer

Price Reduction Offers Over - £219,500


Photograph of 9 Lewis Street, Stranraer

9 Lewis Street, Stranraer

PRICE REDUCTION Offers Over - £129,000

Galloway & Ayrshire Properties

You may also like the following properties from our partners Galloway & Ayrshire Properties.