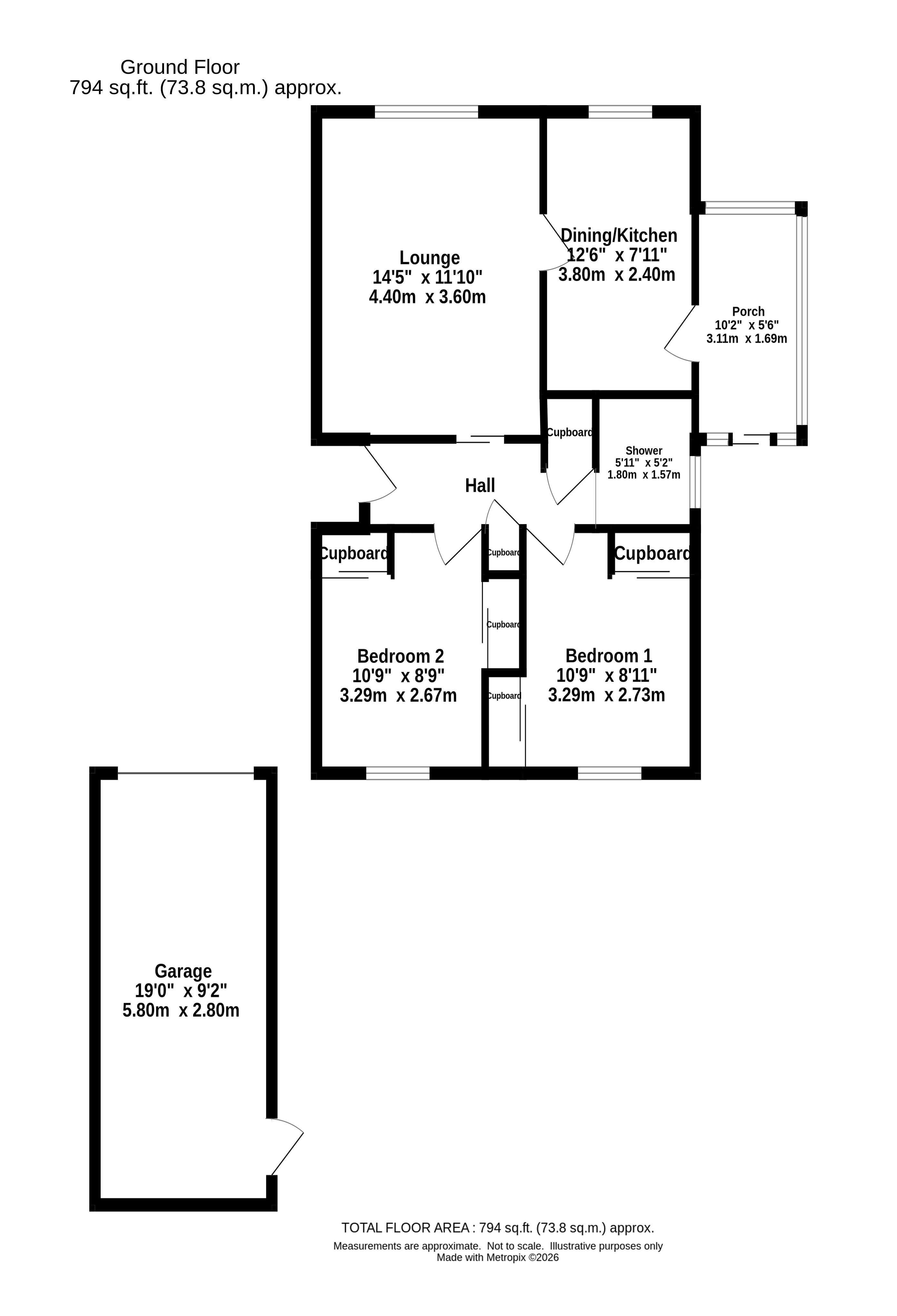
Situated within a sought-after residential area, this modern two-bedroom detached bungalow presents an exceptional opportunity for discerning buyers seeking comfort and convenience. The property boasts a welcoming and thoughtfully arranged interior, with a spacious dining kitchen that serves as the heart of the home, a recently installed shower room, while electric heating and uPVC double glazing ensure year-round comfort. Both bedrooms benefit from two built-in wardrobes.
With scope for further modernisation, this inviting bungalow allows you to imprint your own style and preferences, making it a truly bespoke residence. Practicality is woven throughout, from the integral storage solutions to the easily maintained layout, making every-day living effortless and enjoyable.
The outside space is equally impressive, with the property set amidst its own generous and easily maintained garden grounds. To the front, the garden has been thoughtfully designed with low-maintenance gravel, providing a neat and attractive approach. A paved driveway leads to the detached garage and carport, ensuring ample off-road parking for residents and guests alike. The garage itself is well-equipped with power, light, an up and over door, a side service door, and even a convenient sink unit - perfect for those who enjoy DIY or require additional storage. The enclosed rear garden offers a peaceful retreat, laid out in a combination of a paved patio, gravel, and a mature shrub border.
C
EPC = E
By appointment with SWPC.
Negotiable.